







RuzEstates & Partners vă propune spre vânzare un apartament cu 2 camere în Cortina North – Pipera
Un apartament modern și luminos, situat în prestigiosul ansamblu rezidențial Cortina North, finalizat în 2025. Alegerea perfectă pentru rezidență sau investiție, într-una dintre cele mai exclusiviste zone din nordul Bucureștiului.
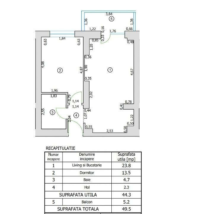
🔹 Detalii apartament:
🔵 Suprafață utilă: 44,3 mp
🔵 Suprafață totală: 49,5 mp
🔵 Compartimentare eficientă: living cu bucătărie open-space, dormitor, baie
🔵 Etaj: 3 / 10
🔵 Se vinde nemobilat – libertate de personalizare după preferințe
🔹 Beneficii Cortina North:
🔵 Complex premium, cu acces securizat și recepție elegantă
🔵 Peste 10.000 mp de spații verzi amenajate
🔵 Centru fitness și wellness complet echipat
🔵 Pistă de alergare și zone de relaxare
🔵 Piscină semiolimpică interioară
🔵 Acces rapid către Promenada Mall, metrou Aurel Vlaicu, Pipera business district
🔵 În proximitate: restaurante, cafenele, școli internaționale
✨ Cortina North înseamnă mai mult decât o locuință – este un stil de viață premium, cu facilități la standarde occidentale.
📞 Contactați echipa RuzEstates & Partners pentru mai multe detalii și programarea unei vizionări.
COD PROPRIETATE- P203817