










RUZ ESTATES & PARTNERS vă propune spre închiriere pe termen lung un apartament spațios, decomandat, cu o terasă luminoasă și vedere superbă către Parcul și Lacul Herăstrău, situat în planul 2, într-una dintre cele mai apreciate zone ale Capitalei. Proaspăt zugrăvit și dotat integral, oferă confort ridicat, liniște și acces rapid către zonele de recreere și restaurantele din Herăstrău.
Detalii tehnice
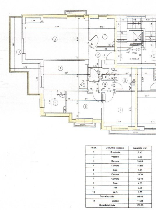
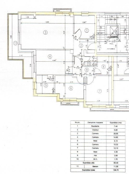
Suprafață : aproximativ 170 mp.
Compartimentare: decomandat
Terasă cu vedere spre parc și lac
3 dormitoare (2 cu pat + 1 birou cu canapea)
3 băi: baie matrimonială, baie cu cadă, baie de serviciu
Compartimentare
Hol de acces
Living generos cu zonă de dining
Bucătărie închisă, complet utilată
Dormitor matrimonial cu baie proprie și saltea nouă
Dormitor secundar cu pat
Cameră amenajată ca birou (cu canapea)
Baie principală cu cadă
Baie de serviciu pentru oaspeți
Terasă cu vedere deschisă spre natură
Dotări & finisaje
Apartament proaspăt zugrăvit
Electrocasnice noi:
mașină de spălat rufe
cuptor cu microunde
Restul electrocasnicelor: stare impecabilă
Mobilat complet
Vedere deschisă, zonă aerisită
Întreținere excelentă a întregului imobil
Localizare
Poziționat într-o zonă superbă și liniștită, în imediata vecinătate a Ambasadei Chinei, apartamentul beneficiază de:
acces direct către Parcul și Lacul Herăstrău
proximitate față de zona de restaurante, cafenele, promenade
supermarket la câțiva pași
acces rapid către Șoseaua Nordului, Aviației, Băneasa, Promenada
De ce merită văzut
Terasă cu priveliște către parc și lac – un mare plus
Zonă exclusivistă, aerisită, foarte sigură
Compartimentare decomandată3 dormitoare (inclusiv birou dedicat)
Electrocasnice noi / impecabile
Disponibil pentru mutare imediată
Un apartament complet funcțional, luminos și excelent poziționat — ideal pentru rezidență premium pe termen lung.
Programează vizionarea!
COD PROPRIETATE P225296