

















Ruz Estates & Partners vă propune spre vânzare un apartament ultra-lux, extrem de spațios, situat la parterul ansamblului exclusivist Palm Residence Forest, într-una dintre cele mai apreciate zone rezidențiale premium din nordul Capitalei – Erou Iancu Nicolae – Pipera.
Proprietatea impresionează prin grădina proprie de mari dimensiuni, finisajele de top și nivelul ridicat de intimitate, fiind ideală atât pentru locuire personală, cât și pentru investiție.
📋 Detalii apartament
• Tip: Apartament 4 camere
• Regim: Parter
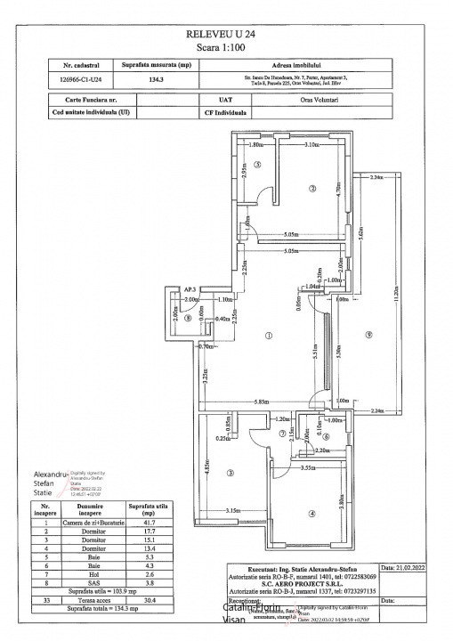
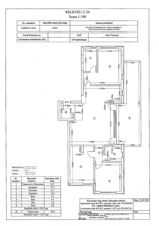
• Suprafață utilă: 104 mp
• Suprafață totală (cu terase/logii): 134 mp
• Grădină proprie: 159 mp
• Stare: Ultra-lux, complet mobilat
🏡 Compartimentare:
• Living spațios cu bucătărie open-space
• 3 dormitoare
• 2 băi
• Acces direct către grădină – intimitate și confort maxim
⚙️ Dotări & facilități
• Tehnologii smart home (climatizare & securitate)
• Finisaje premium, mobilier de lux
• Camere generoase și luminoase
• 2 locuri de parcare subterană
• Acces cu liftul direct din lobby către parcarea subterană
🌿 Despre complex
• Palm Residence Forest – ansamblu rezidențial exclusivist
• An construcție: 2021
• Regim redus de înălțime: P + 2 etaje
• Zonă verde, liniștită, acces controlat
• Comunitate selectă, cu accent pe intimitate și siguranță
📍 Beneficii locație
• Zonă Erou Iancu Nicolae – Pipera
• Acces rapid către DN1, Pipera, Băneasa
• Aproape de școli private internaționale
• Centre comerciale, restaurante, clădiri de birouri
• Ideal pentru familii care caută confort, verdeață și liniște
💰 Informații financiare
• Preț: 340.000 EUR + TVA
• Proprietate deținută de firmă
• Vânzare cu factură
• Posibilitate taxare inversă TVA pentru cumpărător persoană juridică
✨ O proprietate rară, cu grădină proprie impresionantă, finisaje premium și poziționare excelentă în nordul Bucureștiului.
📞 Pentru detalii suplimentare sau programarea unei vizionări,
Ruz Estates & Partners vă stă la dispoziție.
🔑 COD PROPRIETATE: P231694