Imagine 122

Vila de vanzare-4 camere | Parcare | 120 mp | Pipera

ID: P250092 Bucuresti, Pipera 5
330.000€
Descriere
Ruz Estates & Partners vă propune spre vânzare o vilă modernă cu 4 camere, situată pe Strada Cătălin Burcu, într-o zonă liniștită din nordul București, ideală pentru familiile care își doresc confort, intimitate și acces rapid către principalele puncte de interes ale orașului.

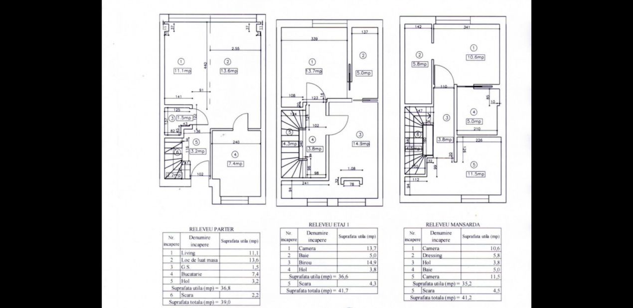
Proprietatea este dispusă pe P+2 și oferă o compartimentare eficientă, curte privată și spații bine organizate, fiind o alegere potrivită pentru locuire permanentă.

📋 Detalii proprietate

• Tip proprietate: vilă individuală
• Număr camere: 4
• Dormitoare: 3
• Băi: 2
• Regim de înălțime: P + 2
• Suprafață utilă: aproximativ 120 mp
• Curte privată: 27 mp
• 2 locuri de parcare în fața casei

Proprietatea se vinde complet mobilată și utilată, exact ca în fotografii, fiind pregătită pentru mutare imediată.

🏡 Compartimentare

• Living spațios cu acces către bucătărie și curte
• Bucătărie complet utilată
• Curte privată cu multă intimitate (27 mp)

Etaj 1:
• 2 dormitoare
• 1 baie

Etaj 2:
• Dormitor matrimonial
• 1 baie

Compartimentarea oferă separarea eficientă a zonei de zi de zona de noapte, fiind ideală pentru o familie.

⚙️ Dotări & facilități

• Centrală termică proprie
• Încălzire prin calorifere
• Mobilier complet
• Bucătărie complet utilată
• Spații de depozitare
• 2 locuri de parcare în fața proprietății

Locuința oferă confort și funcționalitate într-un spațiu bine optimizat.

🌿 Despre proprietate

Casa beneficiază de curte proprie cu un nivel ridicat de intimitate, perfectă pentru relaxare sau pentru petrecerea timpului în aer liber.

Distribuția pe trei niveluri oferă spațiu și intimitate pentru fiecare membru al familiei, într-un cadru urban liniștit.

📍 Beneficii locație

Poziționarea în nordul capitalei oferă acces rapid către multiple facilități:

• acces facil către zonele Pipera și Aviației
• proximitate față de centre comerciale, supermarketuri și restaurante
• acces rapid către școli și grădinițe
• conexiuni rapide către principalele artere ale orașului

Zona oferă liniște, accesibilitate și un stil de viață urban echilibrat.

💰 Informații financiare

• Proprietatea se vinde complet mobilată și utilată
• 2 locuri de parcare incluse

✨ Concluzie

Această vilă reprezintă o oportunitate foarte bună pentru o familie care caută o locuință modernă, cu curte proprie, într-o zonă liniștită din nordul Bucureștiului, oferind compartimentare eficientă, spațiu generos și confort imediat.

Pentru mai multe detalii sau pentru programarea unei vizionări, echipa Ruz Estates & Partners vă stă la dispoziție.
COD PROPRIETATE:P250092
Caracteristici
  • ID:P250092
  • Nr. camere:4
  • Nr. dormitoare:3
  • S. utila:120.00 mp
  • S. terase:5.00 mp
  • Nr. bucatarii:1
  • Nr. bai:2
  • Nr. parcari:2
  • An constructie:2015
  • Regim inaltime:P+2
Specificatii
Curent
Apa
Canalizare
Gaz
Centrala proprie
Calorifere
Aer conditionat
Bucatarie Mobilata
Bucatarie Utilata
Gradina
Localizare
Iuliana Mihalache
Broker Inchirieri
Esti interesat de aceasta proprietate ?
Proprietati similare
0% comision De vanzare Imagine 3905
Vila de vanzare-5 camere | Parcare | 140 mp & 50 mp curte | Pipera
Bucuresti, Pipera 310.000€
5 camere 3 bai 140mp
0% comision De vanzare Imagine 3812
Vila de Vanzare | 5 Camere | Mobilată & Utilata | Parcare | Alexander Residence
Bucuresti, Pipera 289.000€
5 camere 4 bai 101.11mp