Imagine 122

Spațiu comercial | Închiriere | 82.2 mp utili + terasă

ID: P249993 Bucuresti 25
2.055€ + TVA
Descriere
Ruz Estates & Partners vă prezintă un spațiu comercial situat la parterul unui imobil, cu acces direct și compartimentare eficientă pentru activități comerciale sau servicii.

📐 Detalii generale
• Suprafață utilă: 82.2 mp
• Terasă: 29 mp
• Suprafață totală: 111.2 mp
• Suprafață construită: 91.8 mp
• Compartimentare: open space
• Etaj: Parter
• Stare: spațiu comercial

🛋️ Dotări & beneficii
🔹 Spațiu open space
🔹 Acces direct din exterior
🔹 Terasă proprie
🔹 Potrivit pentru activități comerciale sau birouri

🏢 Complex / Imobil
🔹 Imobil rezidențial
🔹 Spații comerciale la parter

📍 Localizare & acces
🔹 Zonă: Sector 5 – Sergent Nuțu Ion
🔹 Acces facil către transport public
🔹 Aproape de zone rezidențiale dense

💰 Preț & condiții
• Preț: 25 € / mp + TVA
• Loc parcare: 100 € + TVA / lună

🔑 Cod proprietate: P249993
Caracteristici
  • ID:P249993
  • Nr. camere:1
  • S. utila:82.00 mp
  • Comp.:Open space
  • Etaj:Parter
  • Nr. bai:1
  • Terase:1
Specificatii
Curent
Apa
Canalizare
Gaz
Centrala imobil
Izolatie Exterior
Izolatie Interior
Apometre
Contor caldura
Contor gaz
Interfon
Localizare
RUZ Estates &Partners
Esti interesat de aceasta proprietate ?
Proprietati similare
De inchiriat Imagine 4340
Apartament 4 Camere- In Vila | 120 mp | Metrou | Piata Romana
Bucuresti, Romana 1.999€
4 camere 3 bai 120mp
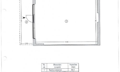
0% comision De inchiriat Imagine 3790
Spațiu comercial | Închiriere | 84.3 mp utili + terasă
Bucuresti 2.100€ + TVA
1 camera 1 baie 84mp