Imagine 122

Spațiu birouri | Închiriere | Parcare subterană | Herăstrău

ID: P249597 Bucuresti, Herastrau 20
4.865€ + TVA
Descriere
Ruz Estates & Partners vă prezintă un spațiu de birouri , într-o zonă de business din nordul Bucureștiului, cu acces rapid către principalele artere ale orașului și către zona Herăstrău – Aviatorilor.

📐 Detalii generale
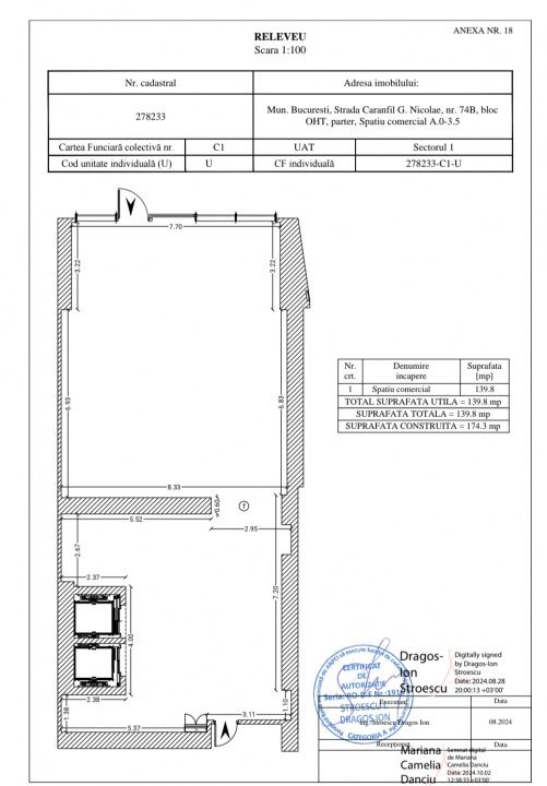
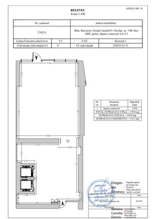
• Suprafață utilă: 139 mp
• Compartimentare: spațiu birouri

🛋️ Dotări & beneficii
🔹 Spațiu generos potrivit pentru activități de birou
🔹 Suprafață eficientă pentru organizarea zonelor de lucru
🔹 Posibilitate locuri de parcare subterane

🏢 Complex / Imobil
🔹 Clădire de birouri
🔹 Acces securizat
🔹 Lift

📍 Localizare & acces
🔹 Zonă: Nicolae Caranfil – Herăstrău – Aviatorilor
🔹 Acces rapid către Șoseaua Nordului și Bulevardul Aviatorilor
🔹 Aproape de Parcul Herăstrău
🔹 Restaurante, cafenele și servicii în proximitate
🔹 Acces facil către zona de business din nordul capitalei

Pentru detalii suplimentare sau programarea unei vizionări,
Ruz Estates & Partners vă stă la dispoziție.

🔑 Cod proprietate: P249597
Caracteristici
  • ID:P249597
  • Nr. camere:2
  • S. utila:139.00 mp
  • Comp.:Compartimentat
  • Nr. bai:1
Specificatii
Localizare
RUZ Estates &Partners
Esti interesat de aceasta proprietate ?
Proprietati similare
0% comision De inchiriat Imagine 282
Spațiu birouri | Închiriere | 25 posturi | Hermes Business centre
Bucuresti, Pipera 5.230€ + TVA
2 camere 1 baie