








Ruz Estates & Partners vă prezintă spre vânzare un apartament modern cu 2 camere, situat în prestigiosul ansamblu North Avenue, în zona Pipera – una dintre cele mai dinamice și apreciate zone din nordul Bucureștiului. Proprietatea se remarcă prin poziționare excelentă, compartimentare funcțională și opțiunea de achiziție a două locuri de parcare.
🏡 Detalii generale:
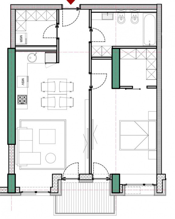
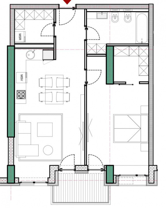
• Suprafață utilă: 63,5
• Suprafata totala : 68,1
• Etaj: 2/6
• Compartimentare: Semidecomandat
• Locuri de parcare: 2 (câte 20.000 € fiecare – opțional)
🔹 Compartimentare și dotări:
• Living spațios și luminos
• Bucătărie modernă
• Dormitor confortabil
• Baie elegantă
• Balcon
• Hol de acces
🔹 Finisaje și echipamente:
• Finisaje moderne și materiale de calitate
• Sistem de climatizare
• Tâmplărie și izolație de înaltă calitate
🔹 Facilități complex:
• Acces securizat
• Lift modern
• Spații verzi și zone de relaxare
• Acces rapid către zonele de business din Pipera
📍 Localizare:
Situat în zona Pipera – North Avenue, apartamentul beneficiază de acces facil către centrele de birouri, școli internaționale, supermarketuri, restaurante, Promenada Mall, Parcul Herăstrău și principalele artere din nordul capitalei.
💶 Preț vânzare apartament: 210.000 €
💶 Preț parcare: 20.000 € / loc (2 disponibile)
📞 Contactează Ruz Estates & Partners pentru mai multe detalii și vizionări.
🔑 Cod proprietate: P220421